Facade District
shape

Our Services

Our Services Responsibilities include, but are not limited to following

1. Testing & Full Mockup

We manage and coordinate all façade performance tests through accredited third-party laboratories. Our team oversees structural design calculations prepared by certified experts and ensures the full-scale mock-up is erected exactly as per approved drawings, materials, and international standards.

Testing & Mockup Workflow

Contract Drawings Review
Supporting System Finalization
Material Sample Approval
Laboratory Testing
Structural Design Calculation
Mockup Installation
Performance Evaluation
Approval
Contract Drawings Review
Supporting System Finalization
Material Sample Approval
Laboratory Testing
Structural Design Calculation
Mockup Installation
Performance Evaluation
Approval

Stone Slab Testing

Typical Tests
  • Compressive Strength – ASTM C170
  • Flexural Strength – ASTM C880
  • Water Absorption – ASTM C97
  • Freeze-Thaw resistance – ASTM C666
  • Petrographic Analysis – ASTM C295

GRC Panel Testing

Typical Tests
  • Flexural Strength (MOR) – ASTM C947
  • Water Absorption – ASTM C948
  • Fiber Content – ASTM C1229
  • Density (wet) – ASTM C948
  • Fire Safety – ASTM E84

Mock-Up Performance Testing

Typical Tests
  • Wind load Resistance – ASTM E330
  • Water Penetration – ASTM E331
  • Air Infiltration – ASTM E283
  • Structural deflection – ASTM E330
  • Anchor Pull-Out – ASTM C1354

2. Engineering and Shop Drawings Development

Our engineering team develops complete façade engineering packages, including typical and special details, cladding shop drawings, fixation shop drawings (full elevations), cutting lists, and technical proposals. We manage the full submission and approval cycle with consultants and ensure seamless integration with all related disciplines.

Engineering & Drawings Workflow

Verification of Design Input
Detailed Engineering & Shop Drawings
Internal Coordination & Review
Consultant Approval
Verification of Design Input
Detailed Engineering & Shop Drawings
Internal Coordination & Review
Consultant Approval
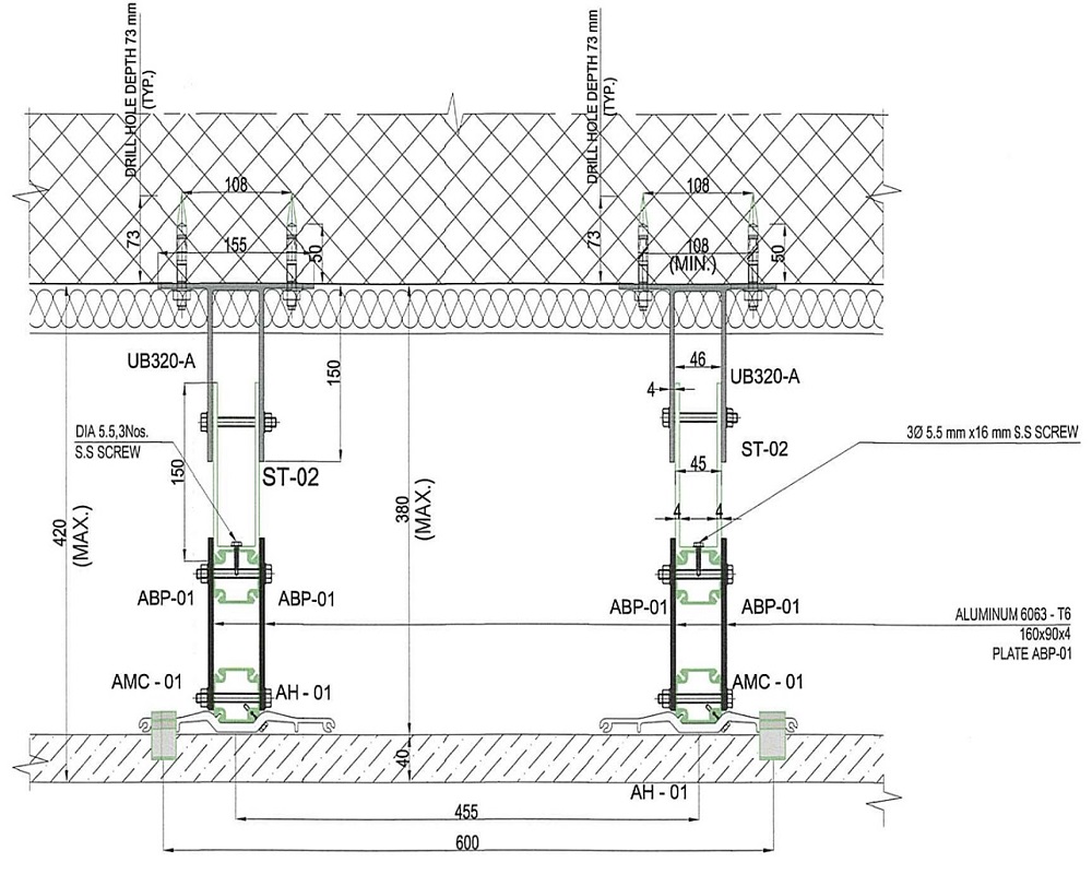
Typical Detailed Sectional View

Typical Detailed Sectional View – Fixed Support - Cavity 420
‑Stone Fixation

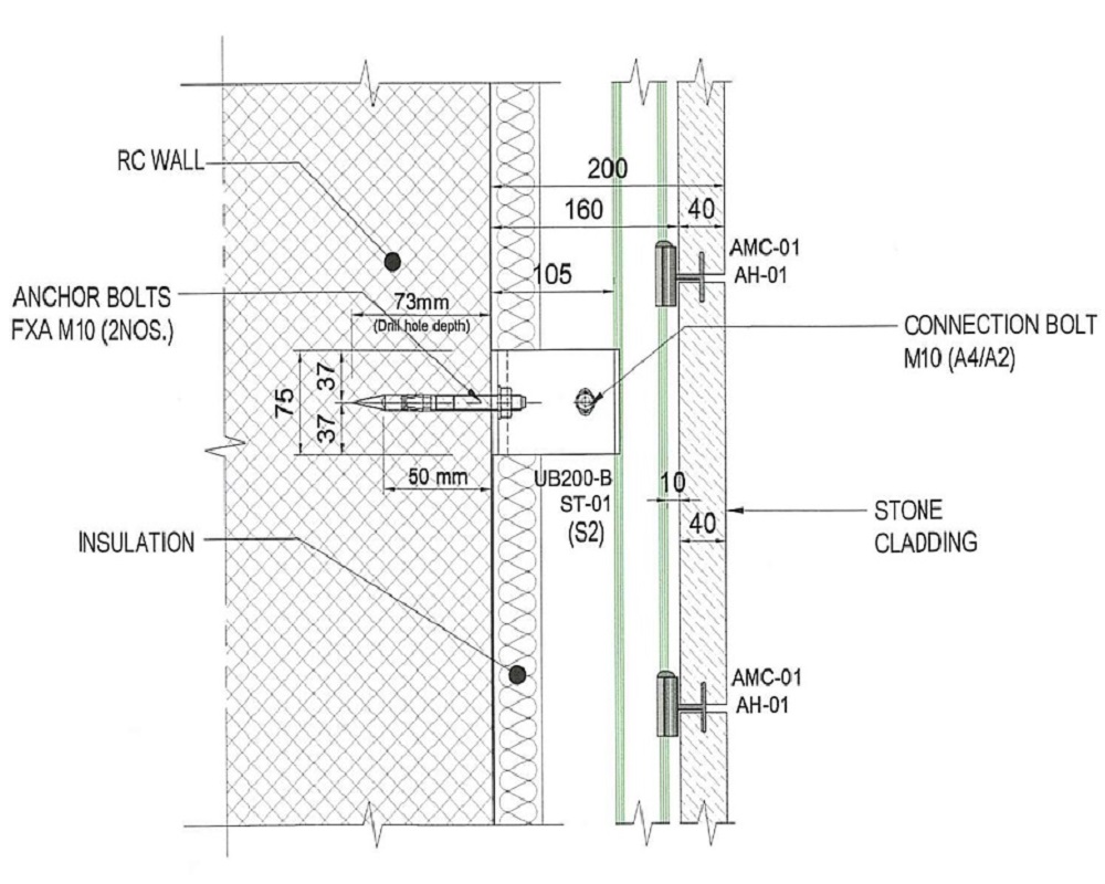
Typical Detailed Plan View

Typical Detailed Plan View – Fixed Support Cavity 200
‑Stone Fixation

3. Procurement, Fabrication, Logistics and Resource Management

Our logistics and resource management capability includes detailed planning of site layout, access routes, emergency pathways, loading/unloading zones, and material/equipment storage. Material procurement, delivery sequencing, inventory control, and onsite handling are managed systematically to avoid delays and maintain product quality.

Procurement & Logistics Workflow

Scope & Resource Planning
Procurement & Vendor Selection
Submittal & Technical Approval
Fabrication Coordination
Production Monitoring
Logistics & Delivery Control
Site Resource Allocation
Execution Readiness
Scope & Resource Planning
Procurement & Vendor Selection
Submittal & Technical Approval
Fabrication Coordination
Production Monitoring
Logistics & Delivery Control
Site Resource Allocation
Execution Readiness
Material Storage and Inventory Control

Material Storage and
Inventory Control

Material Handling & Internal Logistics

Material Handling &
Internal Logistics

Material Sample Review and Approval

Material Sample Review
and Approval

Procurement Schedule
Project: _____________________ Date: _____________________ Prepared by: _____________________
S.No Item Supplier Quantity Lead Time Order Date Required Delivery Responsible Remarks

4. Façade Installation & Site Execution

We deliver end-to-end façade installation with strict adherence to safety, quality, and project timelines. Our skilled teams follow approved shop drawings, use certified tools and calibrated equipment, and work under disciplined supervision to achieve precise and reliable execution.

Façade Installation Workflow

Site Mobilization
Pre-Installation works
Installation
Post Installation works
Quality & Safety Control
Inspection
Punch List & Corrective Action
Completion
Site Mobilization
Pre-Installation works
Installation
Post Installation works
Quality & Safety Control
Inspection
Punch List & Corrective Action
Completion
Façade Installation & Site Execution

5. Project Progress Monitoring & Reporting

We implement digital monitoring tools—time-lapse cameras, dashboards, logs, and structured reporting formats—to track progress in real time. Weekly and monthly reports with photographs and milestone updates keep all stakeholders informed and support timely decision-making.

Progress Monitoring Workflow

Baseline Program
Execution Progress Tracking & Verification
Planned vs. Actual Analysis
Risk & Delay Assessment
Corrective & Recovery Actions
Progress Reporting
Stakeholder Review & Coordination
Updated Forecast & Look-Ahead
Baseline Program
Execution Progress Tracking & Verification
Planned vs. Actual Analysis
Risk & Delay Assessment
Corrective & Recovery Actions
Progress Reporting
Stakeholder Review & Coordination
Updated Forecast & Look-Ahead
Project S-Curve Monitoring

Illustrative S-curve used for monitoring façade performance against planned progress

Project Gantt Chart

Sample actual programme showing completed, ongoing and upcoming façade works

Installation Progress Report Template

6. Project Management & Coordination

We provide full project management coverage across engineering, planning, logistics, execution, and handover. Our coordinated framework ensures alignment between teams, clarity in communication, and consistent control throughout the façade delivery cycle, resulting in smooth and dependable project outcomes.

Project Management Workflow

Project Planning
Risk Management
Resource Coordination
Execution Oversight
Quality & Safety Control
Progress Monitoring
Stakeholder Coordination
Final Documentation & Handover
Project Planning
Risk Management
Resource Coordination
Execution Oversight
Quality & Safety Control
Progress Monitoring
Stakeholder Coordination
Final Documentation & Handover
Project Management
Project Framework
× Please fill in your details to request.
6. Project Management & Coordination